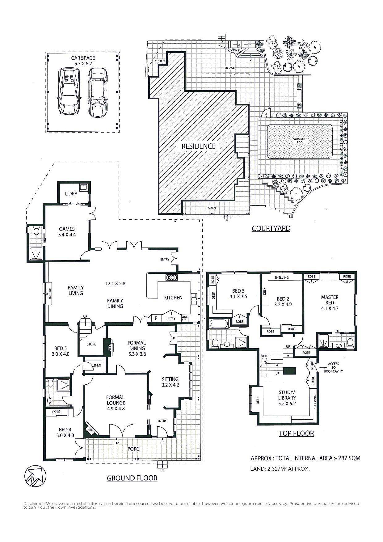
A peaceful haven within one of Pymble's most distinguished blue ribbon areas, this superb character residence combines gracious elegance with contemporary design to offer the ultimate in modern family living. Privately nestled on a glorious 2327sqm parcel framed by magnificent park-like gardens, the home displays an abundance of versatile entertaining spaces perfect for growing or extended families. Exclusively positioned an easy 300-metre stroll to the station and next to Pymble Ladies College (PLC), this generously proportioned home presents an exceptional lifestyle of convenience, privacy and effortless sophistication.
Enjoying a seamless transition from formal to casual living, the property boasts a flexible layout, including three double bedrooms on the lower level, three upstairs and a large open plan home office. Beautifully crafted to appeal to the most discerning buyers, the home features exquisitely detailed high ceilings, original fireplaces, hardwood timber floors and elegant period fixtures fused with modern conveniences.
A statement in refined living offering an exceptional lifestyle for large families
Multiple light-filled entertaining areas extend to superbly private alfresco living
Graceful formal living opens to sandstone terrace overlooking landscaped grounds
Formal dining with striking patterned ceiling, casual meals adjacent to kitchen
Generous chef's kitchen with marble benchtops overlooking pool and gardens
Enormous Rangemaster double oven, gas and electric cooktop, Miele dishwasher
Ample accommodation, including spacious master suite with his/her built-ins
Beautiful established gardens with lush level lawns ideal for young children
French doors, high ceilings, decorative rosettes, deep skirting, alarm system
Ducted air conditioning throughout, double carport, abundant off-street parking
Solid full brick construction on lower level, coveted leafy pocket in prime street
Onsite parking can fit comfortably 6 cars and more if needed
Centrally located close to elite schools including PLC, Abbotsleigh, Knox and Barker College
Anna Wu
Subscribe to the Black Diamondz Newsletter for our latest property information.

