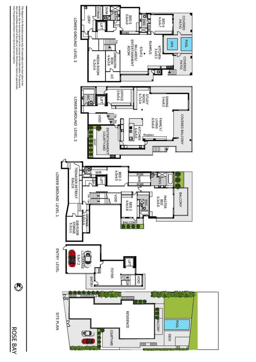
Set on 806sqm of prime harbourfront land with 16.5m of coveted frontage, this four-level Bruce Stafford-designed residence offers rare access to Dumaresq Reserve and the water's edge. Lift-connected across all floors, the home balances privacy, scale and elegance with sweeping 180-degree views of Sydney Harbour, the Harbour Bridge and city skyline from every level.
Entertaining is effortless with multiple indoor and outdoor spaces. A full-floor entertainment level features a billiards area and second kitchen, while terraces, balconies and a protected courtyard with BBQ area provide sun-drenched options for alfresco living. Landscaped gardens, a pool and spa complete the harbourfront experience.
Expansive glass-wrapped living and dining domain with gas fireplace
Private master suite with stone ensuite, dressing room and harbour-view balcony
Four additional bedrooms with ensuites and generous robes
Teen retreat or self-contained au pair quarters with private entry
Custom home office and dedicated cinema room
Professional-grade kitchen with double ovens and stainless steel joinery
Oversized DLUG plus secure forecourt parking for two additional vehicles
Direct gated access to the harbourfront reserve and tidal beach for swimming or kayaking
A rare harbourfront residence designed for multi-generational living, grand entertaining and a lifestyle defined by scale, sophistication and prestige.
Subscribe to the Black Diamondz Newsletter for our latest property information.

